| Page 25 | Modeling a Sailboat: Deck Detail / Anchor Winch Posts |
Hide the rails layer.

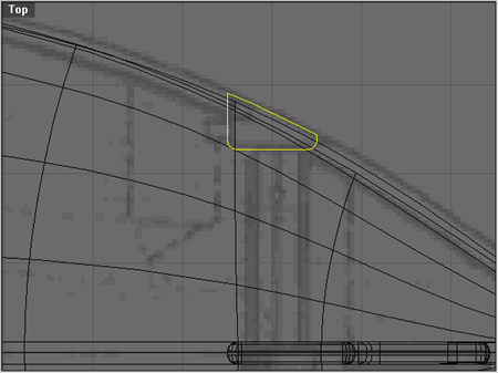
Go to the top view and ZE zoom extents and Z zoom in on the triangle in the background as shown below or locate this curve on the 'deck curves' layer for reference.

Trace a PolyLine over the background and Fillet the two lower corners with a 2 radius at the corners.
NOTE: You may wish to move the posts towards the center of the boat such that the curves stay within the edge of the hull.
Extrude (Surface/Extrude/Straight) the post right through the hull and Split it, with the deck as a cutting object.
Change the 'Absolute tolerance' to .1 and FilletEdge the top with a 1.5 'Radius'.

There is another winch post in the middle of the two side posts. Zoom in on this area in the front view and trace over the post with a PolyLine. Use the 'deck curves' layer for reference, shown below. Close the PolyLine and fillet it with three 2 unit 'Radius' and one 5 unit 'Radius' as shown below. Extrude with 'Cap=Yes', and 'BothSides' activated, a 'Distance' of 5. FilletEdge all the edges except the bottom edge, with a fillet of 2.
